Ningbo Hongjia CNC Technology Co., Ltd. Thuis / Producten / Gewone series voor draaien, frezen en boormachine / X6132 Universal Lifting Table Frequing Machine

X6132 Universal Lifting Table Frequing Machine

Productintroductie en gebruik
Dit machinegereedschap is een soort sterk metalen snijmachine -gereedschap, het machinegereedschap heeft een sterke stijfheid, een breed voedingssnelheidsbereik en kan zware laadchips dragen. The spindle cone hole can be installed directly or through the accessories of various cylindrical milling cutters, circular milling cutters, forming cutters, face milling cutters, and other tools, suitable for processing various parts of the plane, slope, groove, hole, etc., is the ideal processing equipment for machinery manufacturing, mold, instrument, instrument, automobile, motorcycle, and other industries.

+ Neem contact met ons op
  • X6132 Universal Lifting Table Frequing Machine

Productie -informatie

Belangrijkste structurele kenmerken
1, de basis, romp, werkbank, schuif, liftglaasjes en andere hoofdcomponenten worden gegoten van materialen met hoge sterkte en behandeling met kunstmatige veroudering, om de langdurige stabiliteit van het machinetool te waarborgen.
2, Het hoofdaslager van het machine -gereedschap is een taps toelopende rollager, de hoofdas neemt drie ondersteuningsstructuren aan, de systeemstijfheid van de hoofdas is goed, de lagercapaciteit is sterk en de hoofdas neemt het remmen van energieverbruik aan, het remkoppel is groot en de stop is snel en betrouwbaar.
3, de horizontale rotatiehoek van de tabel ± 45 °, breidt het verwerkingsbereik van het gereedschapsmachine uit. Het hoofdtransmissiegedeelte en het voedingsgedeelte van de werktafel nemen de versnellingsoverdrachtsstructuur over, het snelheidsregelbereik is breed en de snelheidsverandering is handig en snel.
4, de tabel X/Y/Z -richting heeft handmatige feed, mobiele feed en mobiel snel vooruit drie, voedingssnelheid kan voldoen aan verschillende verwerkingsvereisten; De snelle feed kan het werkstuk de verwerkingspositie snel bereiken, de verwerking is handig en snel en de niet-verwerkingstijd wordt verkort.
5, X, Y, z drie richtingsgeleiderpaar door ultra-audio blussen, precisie slijp- en schraapbehandeling, met geforceerde smering, verbeteren de nauwkeurigheid, verleng de levensduur van de machine.
6. Het smeerapparaat kan de longitudinale, horizontale, L- en verticale loodschroef en geleiderrail dwingen om te smeren, de slijtage van het gereedschapsmachine te verminderen en de efficiënte werking van het gereedschap van de machine te waarborgen; Tegelijkertijd verandert het koelsysteem de grootte van de koelvloeistofstroom door het mondstuk aan te passen om aan verschillende verwerkingsbehoeften te voldoen.
7, machine -toolontwerp in lijn met ergonomisch principe, gemakkelijk te bedienen; Het bedieningspaneel is ontworpen met figuurlijke symbolen, die eenvoudig en intuïtief is.

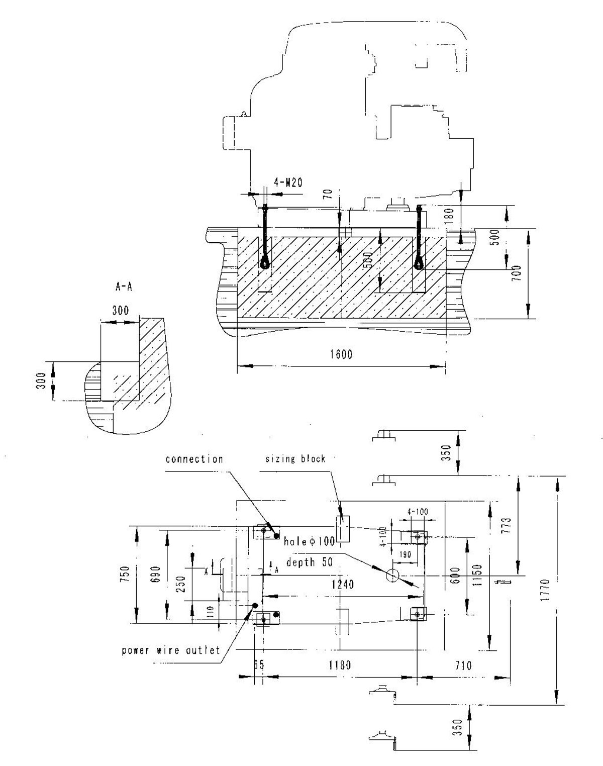
Belangrijkste technische parameters van machine -tools

Taps van het hoofdasgat 7:24 ISO50
Afstand van spindel middenlijn tot bed verticale geleidrail 30-350 mm
Afstand van spindel middenlijn tot ophangstraal 155 mm
Spilopening 29 mm
Maximale rotatiehoek van de tafel ± 45 °
Spindelsnelheidsbereik/serie 30 ~ 1500 tpm /18 niveau
Tabelmaat 1320x320 mm
Tabelslag Longitudinaal/transversaal/verticaal 700 (680/255 (240)/320 (300) mm
Tabelvoedingsbereik Longitudinaal/transversaal/verticaal Niveau 18 23.5-1180/23.5-1180/8-394 mm/min
Tabel snel bewegende snelheid verticaal/horizontaal/verticaal 2300/2300/770 mm/min
Aantal, breedte en afstand van T-vormige slots van de werkbank 18-3-70 mm
Hoofdmotorkracht 7,5 kW
Voer het motorvermogen 1,5 kW
Afmetingen van de machine (l x w x h) 2294x1770x1665 mm
Netto machinegewicht 2700/3000 kg

Contact houden

+ SUBMIT
Ningbo Hongjia CNC Technology Co., Ltd.
Ningbo Hongjia CNC Technology Co., Ltd.
Ningbo Hongjia CNC Technology Co., Ltd. begon in 2006 en werd opgericht in 2018. Het is gevestigd in Qianwan New District, Ningbo City, de provincie Zhejiang, zuidelijke vleugel van China Yangtze River Delta Economic Zone. Het is een onderneming die gespecialiseerd is in het onderzoek, de ontwikkeling, de productie en de verkoop van CNC metaalsnijapparatuur. Als China X6132 Universal Lifting Table Frequing Machine supplier and custom X6132 Universal Lifting Table Frequing Machine company, Met sterke technische kracht en rijke industriële ervaring, streeft Hongjia CNC ertoe klanten geavanceerde CNC -oplossingen te bieden om te voldoen aan de behoeften van klanten in verschillende industrieën.
Plant en apparatuur
  • Fabrieksoptreden
  • Fabrieksoptreden
  • Apparatuur
  • Apparatuur
  • Apparatuur
  • Apparatuur
  • Apparatuur
Wat is nieuws
Industrie kennis

X6132 Universal Lifting Table Frequing Machine , als een product van Hongjia CNC, heeft in veel industrieën een hoge reputatie gewonnen vanwege zijn krachtige metalen snijvermogen en brede toepasbaarheid. Dit machine-tool is niet alleen stijf genoeg om zware laden snijbewerkingen te weerstaan, maar ook uitgerust met een breed scala aan voedingssnelheden om de stabiliteit en efficiëntie van het verwerkingsproces te waarborgen. Het spindelgatontwerp is flexibel, en verschillende cilindrische freesnijders, cirkelvormige freesnijders, het vormen van freesnijders, gezichtsfreesbakken, enz. Kan direct of via accessoires worden geïnstalleerd, biedt onbeperkte mogelijkheden voor de verwerking van verschillende complexe onderdelen zoals vlakken, schotte, motorjes, motorerijen, motorerijen, motorerijen, motorerijen, motorerijen, motorerijen, motorerijen, motorerijen, motorerijen, motorerijen, motorerijen, motorerijen, motorerijen, motorerijen, motorerijen, motorerijen, motorerijen, motorerijen, motorerijen, motorerijen, motorerijen, motorerijen, motorerijen, motorerijen, motorerijen, motorerijen, motorerijen, motorerijen. en andere industrieën.

Voortreffelijk vakmanschap, casting van uitstekende kwaliteit
Hongjia CNC weet dat hoge kwaliteit komt van het ultieme streven naar details. De belangrijkste componenten van X6132 Universal Lifting Table Frees-machine, zoals de basis, lichaam, werkbank, schuif, tilglaasjes, enz., Worden allemaal gegoten met materialen met een hoge sterkte en kunstmatig verouderd, die effectief de interne stress van het materiaal elimineert en de langetermijnstabiliteit en precisie-behoud van het machinegereedschap effectief elimineert. De spindel neemt taps toelopende rollagers aan, gecombineerd met een drie-ondersteunende structuur, die niet alleen een goede systeemstijfheid en een sterke belastingdragende capaciteit heeft, maar ook is uitgerust met een energieverbruikend remapparaat, met een groot remkoppel en snelle en betrouwbare sluiting, die een solide garantie biedt voor een hoge pre-procedure.

Flexibel en veranderlijk, waardoor de verwerkingsgrenzen worden verbreedt
Om aan de gediversifieerde verwerkingsbehoeften te voldoen, kan de horizontale rotatiehoek van de werktafel van de X6132 Universal Lifting -tafelfreesmachine ± 45 ° bereiken. Dit ontwerp breidt het verwerkingsbereik van de machine -tool enorm uit. Tegelijkertijd nemen het hoofdtransmissie -gedeelte en voergedeelte van het werktable een versnellingsoverdrachtsstructuur over, met een breedsnelheidsregulatiebereik en handige en snelle snelheidsverandering, waardoor het verwerkingsproces flexibeler en efficiënter wordt. In termen van de voedingsmodus hebben de X/Y/Z -aanwijzingen van het gereedschap Machine drie modi: handmatig voeding, gemotoriseerde voeding en gemotoriseerde snelle voeding. De voedingssnelheid kan flexibel worden aangepast volgens verschillende verwerkingsbehoeften. Met de snelle voedingsfunctie kan het werkstuk snel de verwerkingspositie bereiken, waardoor de niet-verwerkingstijd sterk wordt verkort en de algehele verwerkingsefficiëntie wordt verbeterd.

Precisieproductie, verlengde levensduur
In termen van detailverwerking zijn de X-, Y- en Z -rails van de X6132 Universal Lifting Table Milling Machine ultrasonisch geblust, precisie -grond en geschraapt, en het geforceerde smeersysteem heeft niet alleen de verwerkingsnauwkeurigheid aanzienlijk verbeterd, maar ook effectief de levensduur van het machinetool uitgebreid. Het smeerapparaat kan de smering van de loodschroeven afdwingen en rails begeleiden in de longitudinale, dwars- en verticale richtingen, waardoor de slijtage van het machine -gereedschap effectief wordt verminderd en de efficiënte en stabiele werking van het machinegereedschap kan waarborgen. Bovendien past het koelsysteem flexibel de koelvloeistofstroom aan door het mondstuk aan te passen om aan de koelbehoeften onder verschillende verwerkingsomstandigheden te voldoen, waardoor de verwerkingskwaliteit en efficiëntie verder worden verbeterd.

Gehumaniseerd ontwerp, vereenvoudigd werkingsproces
Hongjia CNC overwoog volledig het gemak van mens-machine-interactie bij het ontwerpen van de X6132 Universal Lifting Table Milling Machine. Het algehele ontwerp van het machinegereedschap voldoet aan de principes van ergonomie, is gemakkelijk te bedienen en gemakkelijk te gebruiken. Het bedieningspaneel hanteert een grafisch symboolontwerp, dat intuïtief is en gemakkelijk te begrijpen is. Zelfs de eerste keer kunnen het snel beheersen, wat de werk moeilijkheid van de werking aanzienlijk vermindert en de werkefficiëntie verbetert.

Aarzel niet om contact op te nemen wanneer u ons nodig hebt!